große Erdgeschoss – Gewerbeeinheit mitten im Görlitzer Zentrum !
02826 Görlitz, Bürohaus zur Miete
Kontaktdaten
-
NameElisa Ritter
-
FirmaF.T. Immobilien Hausverwaltungen GmbH
-
E-Mail Direkt
-
Tel. Zentrale
-
Mobil
Objektdaten
-
Objekt ID176217
-
ObjekttypenBüro/Praxis, Bürohaus
-
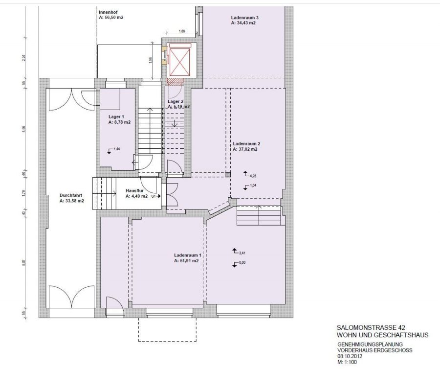
AdresseSalomonstraße 42
02826 Görlitz -
EtageEG
-
Bürofläche ca.181 m²
-
Büroteilfläche ca.130 m²
-
Wesentlicher EnergieträgerGas
-
Letzte Modernisierung2025
-
Zustandnach Vereinbarung
-
AusstattungStandard
-
Nebenkosten500,00 EUR
Ausstattung / Merkmale
- ✓ Keller
Energieausweis
-
Energieausweisnicht erforderlich
-
Wesentlicher EnergieträgerGas
Objektbeschreibung
Beschreibung
Diese attraktive Gewerbeeinheit mit einer Gesamtfläche von ca. 190 m² befindet sich im Erdgeschoss eines repräsentativen Gebäudes im Herzen von Görlitz. Die erstklassige Lage in der Innenstadt bietet eine hervorragende Sichtbarkeit und frequentierte Laufkundschaft, was sie ideal für verschiedenste Geschäftskonzepte macht.
Ausstattung
Der vordere Bereich umfasst einen großzügigen Gewerberaum mit einer Fläche von ca. 52 m². Große Schaufenster sorgen für eine optimale Präsentationsmöglichkeit und eine helle, einladende Atmosphäre. Im hinteren Bereich befinden sich vier weitere Räume, die flexibel genutzt werden können – sei es als Büro, Lager oder individuelle Arbeitsbereiche. Darüber hinaus verfügt die Einheit über eine kleine Küche sowie ein Badezimmer. Zusätzliche Abstellräume bieten weiteren Stauraum.
Die Einheit befindet sich derzeit im Rohbauzustand und bietet somit vielseitige Gestaltungsmöglichkeiten. Nach Absprache kann die Sanierung entweder durch den Eigentümer oder den zukünftigen Mieter erfolgen. Zudem besteht die Möglichkeit, die Raumaufteilung individuell anzupassen und zusätzliche Trennwände einzuziehen, um weitere separate Räume zu schaffen.
Besonderheiten:
Exzellente zentrale Lage mit hoher Frequenz
Großzügige Schaufensterfront für optimale Sichtbarkeit
Flexible Nutzungsmöglichkeiten durch variable Raumgestaltung
Küche und Badezimmer vorhanden
Abstellräume für zusätzlichen Stauraum
Diese vielseitige Gewerbeeinheit bietet eine ideale Grundlage für Einzelhandel, Büroflächen, Praxisräume oder kreative Konzepte. Nutzen Sie diese Gelegenheit und verwirklichen Sie Ihre Geschäftsidee in bester Lage von Görlitz!
Die Gewerbeeinheit wird vor Bezug in Absprache mit den Mietern renoviert.
Sonstige Informationen
derzeit unsaniert
Lage
Die Gewerbeeinheit befindet sich in gutbürgerlicher bis gehobener Innenstadt-Lage.
Wenige Gehminuten entfernt befinden sich zwei Supermärkte, die historische Strassburg-Passage sowie die Einkaufspassage auf der Berliner Straße mit zahlreichen Geschäften bzw. Boutiquen zum Shoppen und für den alltäglichen Bedarf. Auch ärztliche Einrichtungen, Apotheken, das Postamt sowie Anbindungen an den ÖPNV sind in wenigen Gehminuten erreichbar. Die Immobilie liegt im östlichen Teil der Görlitzer Innenstadt, wodurch man auch schnell über die „Brücke der Freundschaft“ in die polnische Nachbarstadt Zgorzelec gelangt.
Salomonstraße 42, 02826 Görlitz, Deutschland (Größere Karte ansehen)








