zentrumsnahe 3- Raumwohnung mit Balkon und Fahrstuhl in der Südstadt !
02826 Görlitz, Etagenwohnung zur Miete
Kontaktdaten
-
NameElisa Ritter
-
FirmaF.T. Immobilien Hausverwaltungen GmbH
-
E-Mail Direkt
-
Tel. Zentrale
-
Mobil
Objektdaten
-
Objekt ID162069
-
ObjekttypenEtagenwohnung, Wohnung
-
AdresseZittauer Str. 8
02826 Görlitz -
Etage2
-
Etagen im Haus4
-
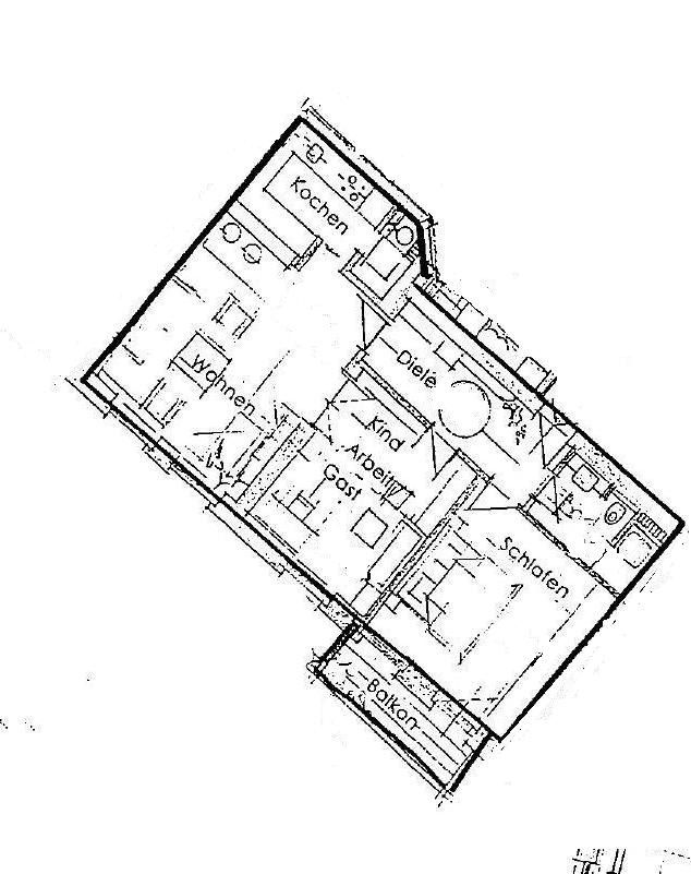
Wohnfläche ca.71 m²
-
Zimmer3
-
Schlafzimmer2
-
Badezimmer1
-
Balkone1
-
HeizungsartZentralheizung
-
Wesentlicher EnergieträgerGas
-
Zustandvollsaniert
-
AusstattungStandard
-
Kaution1.485,00 EUR
-
Kaltmiete495,00 EUR
-
Nebenkosten245,00 EUR
-
Warmmiete740,00 EUR (Heizkosten enthalten)
Ausstattung / Merkmale
- ✓ Balkon
- ✓ barrierefrei
- ✓ Denkmalgeschützt
- ✓ Keller
- ✓ Personenaufzug
Energieausweis
-
Energieausweisnicht erforderlich
-
Wesentlicher EnergieträgerGas
Objektbeschreibung
Ausstattung
gemütliche 3- Raumwohnung mit offener Wohnküche samt Abstellkammer, Balkon vom Schlafzimmer abgehend, Bad mit Wanne, Fahrstuhl, Laminat
Sonstige Informationen
Bilder können vom Originalzustand abweichen!
Lage
Görlitzer Südstadt
Zittauer Str. 8, 02826 Görlitz , Deutschland (Größere Karte ansehen)



























