Kapitalanlagen – Eigentumswohnungen in 1A-Lage – Musterwohnung GROSS
02826 Görlitz, Etagenwohnung zum Kauf
Kontaktdaten
- NameDavid Berger
- FirmaF.T. Immobilien Hausverwaltungen GmbH
- Tel. Zentrale
- Mobil
Objektdaten
- Objekt ID58175
- ObjekttypenEtagenwohnung, Wohnung
- AdresseAugustastr. 28
02826 Görlitz - EtageEG
- Etagen im Haus3
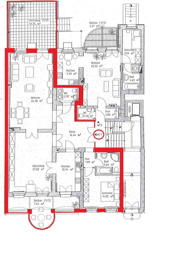
- Wohnfläche ca.135 m²
- Gesamtfläche ca.135 m²
- Zimmer3
- Schlafzimmer2
- Badezimmer2
- Balkone1
- HeizungsartZentralheizung
- Wesentlicher EnergieträgerGas
- Baujahr1895
- Letzte Modernisierung1997
- Zustandvollsaniert
- Ausstattunggehoben
- Käuferprovision4,76 %
inkl. gesetzl. MwSt. - ProvisionspflichtigJa
- Kaufpreis270.000 EUR
Ausstattung / Merkmale
- ✓ Balkon
- ✓ Denkmalgeschützt
- ✓ Gartennutzung
- ✓ Gäste WC
- ✓ Keller
- ✓ Personenaufzug
Energieausweis
- Energieausweisnicht erforderlich
- Baujahr1895
- Wesentlicher EnergieträgerGas
Objektbeschreibung
Beschreibung
Hochwertig ausgestattete Eigentumswohnungen zur Kapitalanlagen im Gründerzeitobjekt
Zum Verkauf stehen verschiedene Wohneinheiten (2-3 Raumwohnungen mit 46 bis 141 m²) eines denkmalgeschützten Gründerzeithauses auf der Augustastraße – Premium-Lage in Görlitz. Die Wohneinheiten können einzeln, etagenweise oder als gesamtheitliches Mehrfamilienhaus erworben werden.
Die Immobilie umfasst drei Vollgeschosse, ein ausgebautes Dachgeschoss und ist voll unterkellert.
Das Gebäude wird durch eine Gaszentralheizung versorgt und ist mit einem Glasfaser-Internetanschluss versehen. Die Immobilie ist mit einem Personenaufzug ausgestattet, wodurch eine altersgerechte Nutzung ermöglicht ist.
Alle Wohneinheiten sind zu einem Quadratmeterpreis von 2.000,00 € erhältlich.
Die Gesamtrendite des Hauses beträgt aktuell ca 3,9 %.
Eine detaillierte Flächen-Miete-Rendite-Aufstellung finden Sie anbei.
Ausstattung
Das gutbürgerliche und denkmalgeschützte Mehrfamilienhaus wurde ca. 1895 erbaut und gehört somit in die Gründerzeit (Historismus). Das Gebäude wurde 1995 umfangreich saniert und modernisiert. Die Versorgung von Heizung und Warmwasser erfolgt über eine Gaszentralheizung mit zentraler Warmwasseraufbereitung. Ein Glasfaseranschluss (Telekom) liegen an. Das Objekt ist weiterhin mit einem Personenaufzug ausgestattet. An der Rückseite des Gebäudes befindet sich ein ruhig gelegener und begrünter Innenhof.
Alle Wohneinheiten wurden seinerzeit hochwertig saniert mit Echtholzparkett und hochwertigen Fliesen sowie Keramik von Villeroy und Boch. Alle Wohnungen beinhalten jeweils eine separate Küche, ein Bad mit Badewanne und einen Balkon. Die größeren Wohneinheiten verfügen zudem über ein Gäste-WC, einen Zweitbalkon und Stuckelemente / historische Malereien an den Decken. Seit nachweislich 2011 wurden am Gebäude und in den Wohnungen jährlich kleinere Instandhaltungen und Renovierungsmaßnahmen durchgeführt, um das Objekt weiterhin in einem attraktiven und werterhaltenden Zustand zu bewahren.
Sonstige Informationen
Alle Angaben beruhen auf uns erteilten Informationen, für deren Richtigkeit wir keine Haftung übernehmen.
Das Angebot ist freibleibend, ein Zwischenverkauf vorbehalten.
Gesetzliche Widerrufsbelehrung: https://ft-immobilien.com/widerrufsbelehrung
Lage
Die Görlitzer Innenstadt erstreckt sich vom Hauptbahnhof bis zum historischen Obermarkt und von der Neiße (als Grenzfluss zu Polen) bis hin zum nördlichen gelegenen Stadtteil Königshufen. Die Straßenzüge sind geprägt von Häusern aus den Epochen Gründerzeit und Jugendstil.
Das Stadtzentrum ist logistisch gut strukturiert. Sowohl fußläufig, als auch mit Pkw, Bus oder Straßenbahn gelangt man innerhalb wenigen Minuten zu seinem jeweiligen Ziel. Die Nachbarstadt Zgorzelec bietet weitere Möglichkeiten für kulturelle Tagesausflüge und Einkaufsmöglichkeiten.
Das Grundstück befindet sich in Ost-West-Ausrichtung in der malerischen Augustastraße. Die Straße ist als Einbahnstraße angelegt und Bestandteil einer 30er-Zone.
Wenige Gehminuten entfernt befinden sich ein Supermarkt, die historische Strassburg-Passage sowie die Einkaufspassage auf der Berliner Straße mit zahlreichen Geschäften bzw. Boutiquen zum Shoppen und für den alltäglichen Bedarf. Auch ärztliche Einrichtungen, Apotheken, das Postamt sowie Anbindungen an den ÖPNV sind in wenigen Gehminuten erreichbar.
Augustastr. 28, 02826 Görlitz , Deutschland (Größere Karte ansehen)























