Gemütliche 3-RWE mit Balkon und Aufzug im Stadtzentrum!
02826 Görlitz, Etagenwohnung zum Kauf
Kontaktdaten

- NameMathias Krahl
- FirmaF.T. Immobilien Hausverwaltungen GmbH
- E-Mail Direkt
- Tel. Zentrale
- Mobil
Objektdaten
- Objekt ID173254
- ObjekttypenEtagenwohnung, Wohnung
- AdresseKonsulstraße 39
02826 Görlitz - Etage2
- Etagen im Haus5
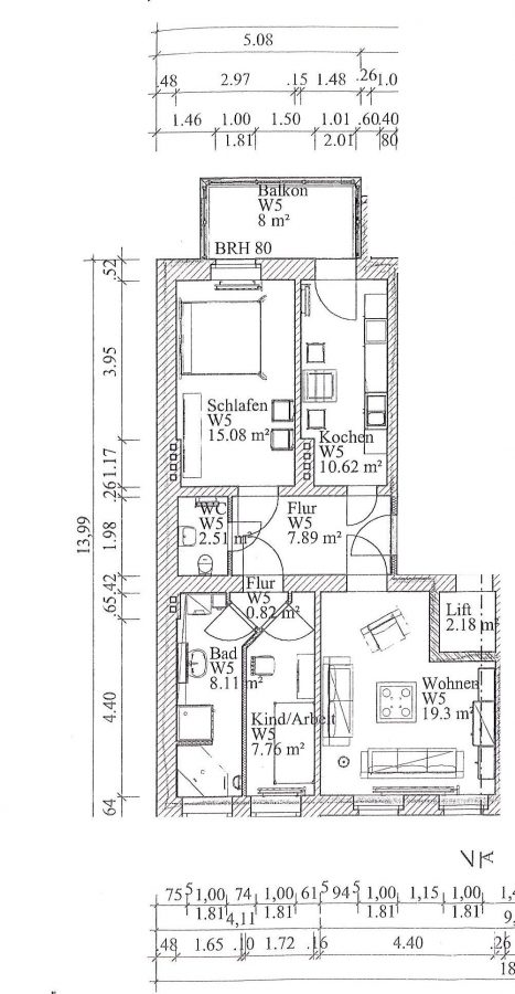
- Wohnfläche ca.77 m²
- Gesamtfläche ca.77 m²
- Zimmer3
- Schlafzimmer1
- Badezimmer1
- Balkone1
- HeizungsartZentralheizung
- Wesentlicher EnergieträgerGas
- Baujahr1895
- Letzte Modernisierung1996
- Zustandvollsaniert
- AusstattungStandard
- Stellplätze gesamt1
- Käuferprovision3,57 %
inkl. gesetzl. MwSt. - ProvisionspflichtigJa
- Hausgeld395 EUR
- Kaufpreis125.000 EUR
Ausstattung / Merkmale
- ✓ Außenstellplatz
- ✓ Balkon
- ✓ Keller
- ✓ Personenaufzug
Energieausweis
- Energieausweisnicht erforderlich
- Baujahr1895
- Wesentlicher EnergieträgerGas
Objektbeschreibung
Beschreibung
Eigentumswohnung zum Sofortbezug!
Diese charmante 3-Raumwohnung befindet sich im 2. Obergeschoss eines sanierten Altbaus aus dem Jahr 1895 in zentraler Lage von Görlitz.
Auf ca. 77 m² Wohnfläche überzeugt die Wohnung durch eine strukturierte Raumaufteilung, helle Räume und einen angenehmen Wohnkomfort.
Das monatliche Hausgeld beträgt derzeit 395,00 €.
Ausstattung
Die Wohnung verfügt über einen großzügigen Wohnbereich, ein ruhig gelegenes Schlafzimmer sowie ein weiteres vielseitig nutzbares Zimmer, das sich ideal als Kinder- oder Arbeitszimmer eignet.
Genießen Sie ein zusätzliches Gäste-WC, entspannen Sie auf dem großzügigen Balkon, und profitieren Sie von einem praktischen Kellerabteil für extra Stauraum. Im Hofbereich des Grundstücks ist ein Außenstellplatz vorhanden. Für wohlige Wärme sorgt die Gaszentralheizung, und der Aufzug im Haus macht den Alltag besonders bequem.
Die durchdachte Raumaufteilung und die praktische Ausstattung bieten ideale Voraussetzungen, um hier ein gemütliches Zuhause in der Innenstadtlage von Görlitz zu gestalten.
Sonstige Informationen
Alle Angaben beruhen auf uns erteilten Informationen, für deren Richtigkeit wir keine Haftung übernehmen.
Das Angebot ist freibleibend, ein Zwischenverkauf vorbehalten.
Gesetzliche Widerrufsbelehrung: https://ft-immobilien.com/widerrufsbelehrung
Lage
Von der Konsulstraße aus erreichen Sie in wenigen Minuten fußläufig eine hervorragende Infrastruktur mit vielfältigen Einkaufsmöglichkeiten, Bäckereien, Cafés und Restaurants sowie Dienstleistern und medizinischen Einrichtungen direkt vor der Tür.
Die historische Altstadt mit dem Obermarkt, Museen und kulturellen Highlights ist bequem zu Fuß erreichbar und macht den Standort besonders attraktiv. Dank kurzer Wege zu öffentlichen Verkehrsmitteln und dem Bahnhof sind Sie bestens angebunden - perfekt für urbanes Wohnen mit maximaler Flexibilität.
Konsulstraße 39, 02826 Görlitz, Deutschland (Größere Karte ansehen)





















