ehemaliger Kindergarten im Dornröschenschlaf !
02826 Görlitz, Bürohaus zur Miete
Kontaktdaten
-
NameElisa Ritter
-
FirmaF.T. Immobilien Hausverwaltungen GmbH
-
E-Mail Direkt
-
Tel. Zentrale
-
Mobil
Objektdaten
-
Objekt ID182309
-
ObjekttypenBüro/Praxis, Bürohaus
-
AdresseSattigstr. 33
02826 Görlitz -
EtageEG
-
Etagen im Haus1
-
Grundstück ca.2.000 m²
-
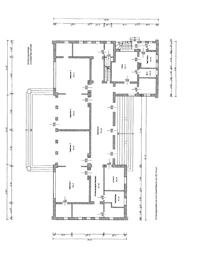
Bürofläche ca.287 m²
-
Gesamtfläche ca.300 m²
-
Wesentlicher EnergieträgerGas
-
Zustandrenovierungsbedürftig
-
AusstattungStandard
-
Stellplätze gesamt5
-
Nebenkosten500,00 EUR
Ausstattung / Merkmale
- ✓ Keller
- ✓ Kunstoffboden
Energieausweis
-
Energieausweiswird bei Besichtigung vorgelegt
-
Wesentlicher EnergieträgerGas
Objektbeschreibung
Beschreibung
Der ehemalige Kindergarten im Dornröschenschlaf ist eine einzigartige Gelegenheit für Menschen mit kreativen Visionen und handwerklichem Geschick. Das großzügige Grundstück mit viel Grünfläche, die ruhige Lage und die zentrale Anbindung machen das Objekt zu einer vielseitig nutzbaren Ressource für Vereine, Initiativen und soziale Projekte. Ergreifen Sie die Chance, dieses Haus zu neuem Leben zu erwecken und gestalten Sie Ihre eigene bezaubernde Geschichte in diesem historischen Gebäude.
Ausstattung
Das ebenerdige Gebäude verfügt über eine Gesamtfläche von ca. 290 m² und zeichnet sich durch eine Vielzahl abgehender Räume aus, die sich ideal für unterschiedliche Zwecke eignen. Neben den ehemaligen Gruppenräumen gibt es auch Toiletten- und Waschräume sowie eine Küche. Die räumliche Aufteilung bietet viel Gestaltungsspielraum für Ihre individuellen Bedürfnisse.
Das Haus befindet sich in einem unrenovierten bzw. unsanierten Zustand und benötigt daher eine kreative Hand, die es wieder auf Vordermann bringt. Für handwerklich begabte Mieter oder Vereine mit einer Vision bietet dieses Objekt eine einzigartige Möglichkeit, ihre Ideen in die Realität umzusetzen. Durch das Engagement und die Investition in die Renovierung lässt sich dieses Objekt zu einem beeindruckenden und funktionalen Raum verwandeln.
Sonstige Informationen
Ideale Nutzung:
Das Gebäude eignet sich perfekt für Vereine, Initiativen, soziale Projekte oder Kreative, die nach einem Platz suchen, um ihre Ideen und Aktivitäten zu verwirklichen. Die große Grünfläche ermöglicht Outdoor-Veranstaltungen und die zentrale Lage zieht Menschen aus verschiedenen Teilen der Stadt an.
Hinweis: Alle Angaben basieren auf Informationen, die zum Zeitpunkt der Erstellung dieses Exposés vorliegen. Änderungen sind vorbehalten.
Lage
Das Objekt liegt in einer ruhigen Gegend von Görlitz und ist dennoch gut erreichbar. Der Bahnhof ist nur wenige Gehminuten entfernt, was eine hervorragende Anbindung an den öffentlichen Nahverkehr ermöglicht. Die Nähe zu Einkaufsmöglichkeiten, Schulen und anderen Einrichtungen macht diese Lage besonders attraktiv.
Sattigstr. 33, 02826 Görlitz, Deutschland (Größere Karte ansehen)































