charmante 3- Raumwohnung mit Balkon und Stellplatz im Görlitzer Zentrum !
02826 Görlitz, Etagenwohnung zur Miete
Kontaktdaten

- NameElisa Ritter
- FirmaF.T. Immobilien Hausverwaltungen GmbH
- E-Mail Direkt
- Tel. Zentrale
- Mobil
Objektdaten
- Objekt ID140033
- ObjekttypenEtagenwohnung, Wohnung
- AdresseMittelstr. 2
02826 Görlitz - Etage1
- Etagen im Haus3
- Wohnfläche ca.80 m²
- Zimmer3
- Schlafzimmer1
- Badezimmer1
- Balkone1
- Wesentlicher EnergieträgerGas
- Zustandvollsaniert
- AusstattungStandard
- Stellplätze gesamt1
- StellplatzStellplatzmiete: 30 EUR (Anzahl: 1)
- Kaution1.320,00 EUR
- Kaltmiete440,00 EUR
- Nebenkosten240,00 EUR
- Warmmiete680,00 EUR (Heizkosten enthalten)
Ausstattung / Merkmale
- ✓ Außenstellplatz
- ✓ Balkon
- ✓ Keller
Energieausweis
- Energieausweisnicht erforderlich
- Wesentlicher EnergieträgerGas
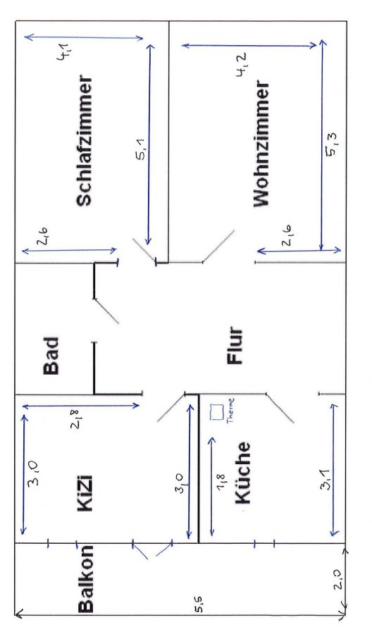
Objektbeschreibung
Ausstattung
Die Wohnung verfügt über einen zentralen Flur, von dem aus alle Räume bequem erreichbar sind. Die separate Küche bietet direkten Zugang zum großzügigen Balkon – ideal für ein Frühstück im Freien oder entspannte Abendstunden.
Das Badezimmer ist mit einer Badewanne ausgestattet. Das Schlafzimmer liegt hofseitig und garantiert dadurch ruhige Nächte. Auch von hier aus haben Sie Zugang zum weitläufigen Balkon.
Die beiden weiteren Wohn-, Schlaf- oder Büroräume sind zur ruhigen Einbahnstraße hin ausgerichtet.
Lage
zentrale Görlitzer Innenstadtlage
Mittelstr. 2, 02826 Görlitz, Deutschland (Größere Karte ansehen)























