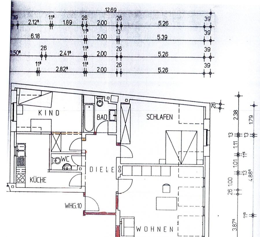
geräumige 3- Raumwohnung mit Einbauküche im Dachgeschoss !
02828 Görlitz, Dachgeschosswohnung zur Miete
Kontaktdaten

- NameElisa Ritter
- FirmaF.T. Immobilien Hausverwaltungen GmbH
- E-Mail Direkt
- Tel. Zentrale
- Mobil
Objektdaten
- Objekt ID136836
- ObjekttypenDachgeschosswohnung, Wohnung
- AdresseHohe Str. 12
02828 Görlitz - Etage4
- Etagen im Haus4
- Wohnfläche ca.81,50 m²
- Zimmer3
- Schlafzimmer1
- Badezimmer1
- Wesentlicher EnergieträgerGas
- Zustandvollsaniert
- AusstattungStandard
- Kaution1.110,00 EUR
- Kaltmiete370,00 EUR
- Nebenkosten280,00 EUR
- Warmmiete650,00 EUR (Heizkosten enthalten)
Ausstattung / Merkmale
- ✓ Denkmalgeschützt
- ✓ Einbauküche
- ✓ Keller
Energieausweis
- Energieausweisnicht erforderlich
- Wesentlicher EnergieträgerGas
Objektbeschreibung
Ausstattung
separate Küche mit Einbauküche, Bad mit Wanne, Laminat
Lage
ruhige Innenstadtlage
Hohe Str. 12, 02828 Görlitz, Deutschland (Größere Karte ansehen)

















