attraktive Gewerbeeinheit mit großen Schaufenstern im Erdgeschoss im Görlitzer Zentrums!
02826 Görlitz, Bürohaus zur Miete
Kontaktdaten

- NameElisa Ritter
- FirmaF.T. Immobilien Hausverwaltungen GmbH
- E-Mail Direkt
- Tel. Zentrale
- Mobil
Objektdaten
- Objekt ID157144
- ObjekttypenBüro/Praxis, Bürohaus
- AdresseLuisenstr. 20
02826 Görlitz - EtageEG
- Bürofläche ca.99 m²
- HeizungsartZentralheizung
- Wesentlicher EnergieträgerGas
- Zustandvollsaniert
- AusstattungStandard
- Kaution1.500,00 EUR
- Kaltmiete500,00 EUR
- Nebenkosten300,00 EUR
Ausstattung / Merkmale
- ✓ barrierefrei
- ✓ Fliesenboden
- ✓ Keller
Energieausweis
- Energieausweisnicht erforderlich
- Wesentlicher EnergieträgerGas
Objektbeschreibung
Beschreibung
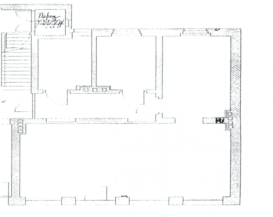
In der Luisenstraße 20 in Görlitz erwartet Sie eine großzügige Gewerbeeinheit mit ca. 100 m² im Erdgeschoss eines charmanten Mehrfamilienhauses.
Die Einheit überzeugt durch eine offene und flexible Raumgestaltung, die sich ideal für kreative Teams, Agenturen oder als ruhiger Arbeitsplatz eignet. Der großzügige, straßenseitige Empfangsbereich sorgt für einen repräsentativen ersten Eindruck und bietet viel Platz für Besucher oder Kunden. Ergänzt wird das Raumangebot durch zwei weitere Arbeitsräume sowie ein WC, wodurch eine klare und funktionale Aufteilung gewährleistet ist.
Die Einheit besticht durch ein einladendes, helles Ambiente, das vielfältige Nutzungsmöglichkeiten eröffnet, egal ob als Büro, Atelier oder Praxisfläche.
Lage
Die Lage in der Luisenstraße ist ideal für Unternehmen, die von der zentralen Erreichbarkeit profitieren möchten. Görlitz bietet eine charmante Altstadt und eine Vielzahl von Restaurants, Cafés und Geschäften. Die Anbindung an den öffentlichen Nahverkehr ist ausgezeichnet, sodass Sie schnell in die umliegenden Städte gelangen können Auch die A4 in Richtung Polen sowie Dresden ist in Kürze zu erreichen.
Luisenstr. 20, 02826 Görlitz, Deutschland (Größere Karte ansehen)






















